Ballagawne

Barn Conversion

2013

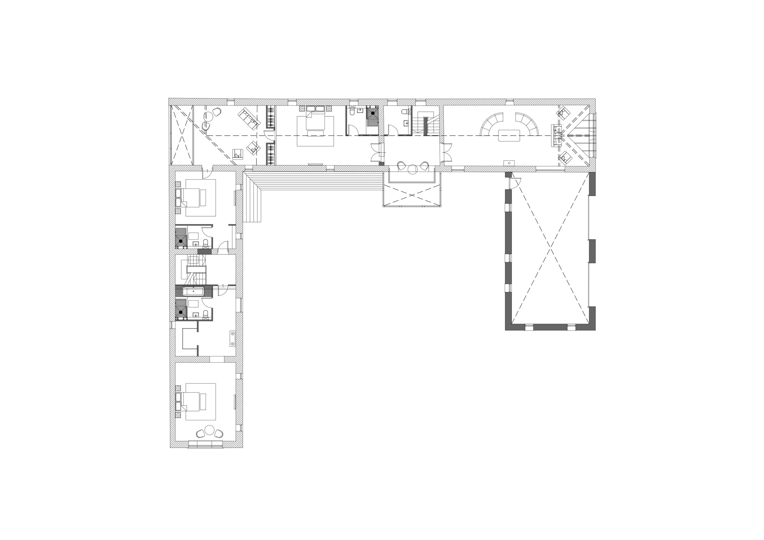
Set against a dramatic coastal backdrop, this project extends and refurbishes an existing barn to provide contemporary accommodation. A glazed link connects the new and existing spaces, minimizing the need for long corridors while allowing light to flow throughout. Expansive glazing frames breathtaking sea views, complemented by smaller, traditional window openings that preserve the buildings’ rural identity. Original features such as Manx stone and existing timber structures have been carefully retained and integrated to ensure the new works complement the original building.  

Previous
Previous

Douglas Offices

Next
Next

Ballachrink